Espace propriétaire
fr

Votre recherche

Exclusivité
Nice (06100)

5 pièces - 198 m²

NICE GAIRAUT - Villa de charme de 200m², piscine , terrain de 2

1 600 000 €
Ref : 85302232
Découvrir le bien
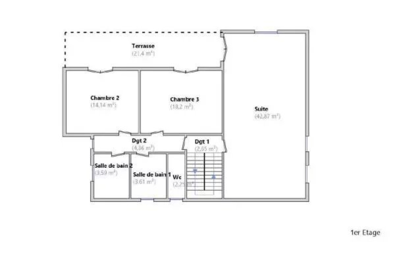
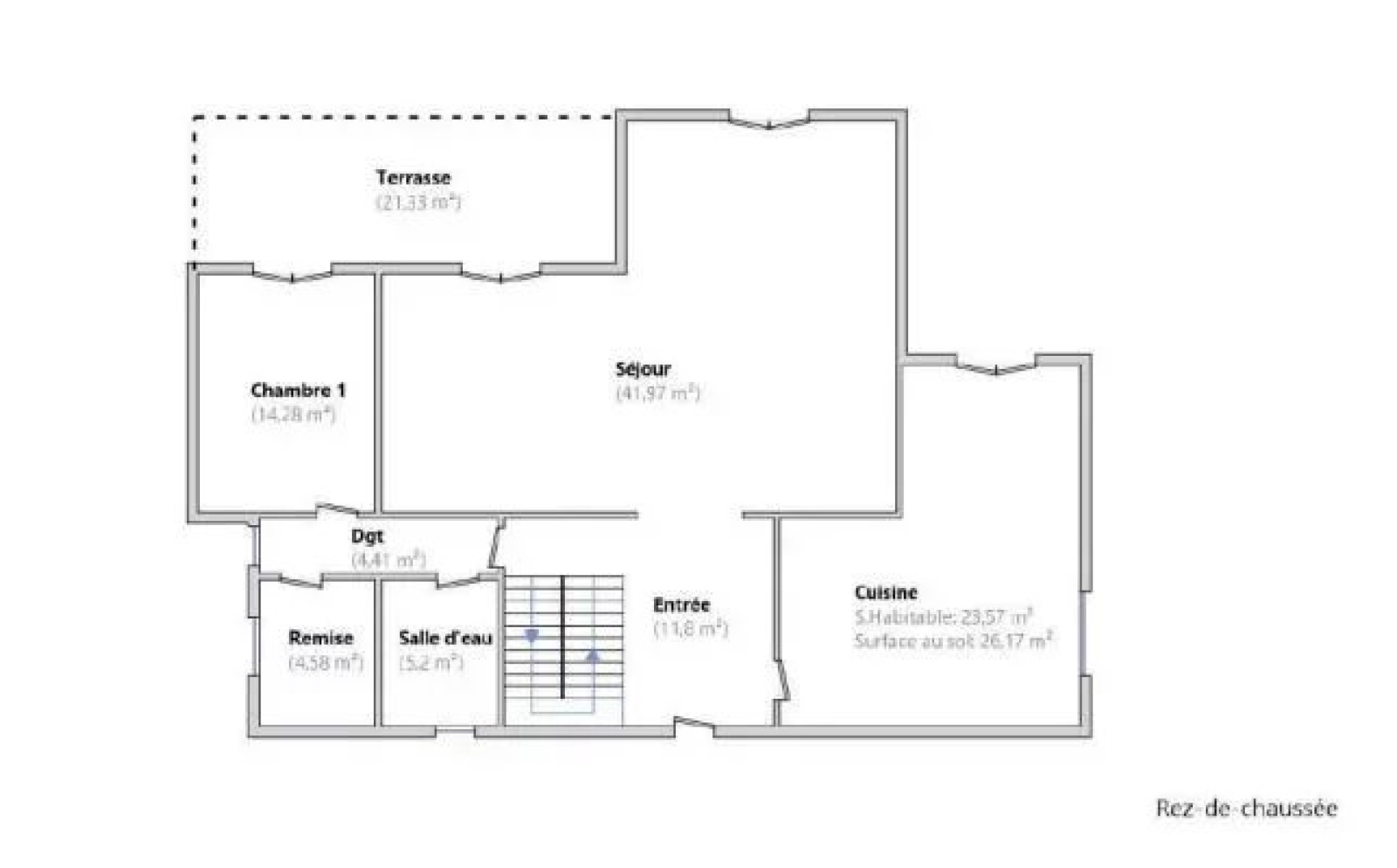
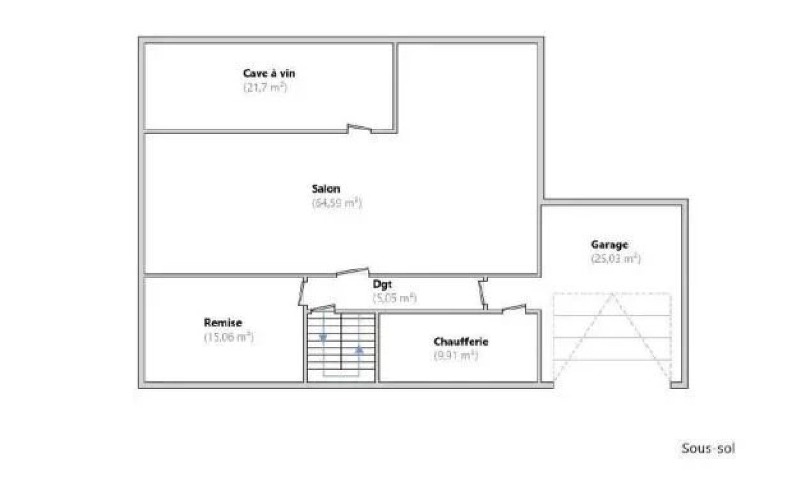
NICE GAIRAUT - Villa de charme de 200m², piscine , terrain de 2700m² Située dans un quartier résidentiel prisé de Nice, Villa individuelle de 200m² sur 2 niveaux édifiée sur un terrain de 2700m² avec sa vaste piscine. Cette propriété offre une atmosphère paisible et verdoyante, avec son jardin soigneusement entretenu. Confort absolu et espaces de vie lumineux. Les pièces de vie spacieuses s'ouvrent sur une terrasse ensoleillée, offrant ainsi un cadre idéal. Au rez-de-chaussée, une entrée mène à un séjour double, une cuisine indépendante, une salle d'eau et une chambre en rez-de-jardin pour un confort optimal. A l'étage, deux chambres avec terrasse et salles d’eau ainsi qu'une élégante suite parentale avec baignoire balnéo promettent des nuits paisibles et reposantes. Le sous-sol entièrement aménagé propose un espace polyvalent avec point d'eau et coin nuit, ainsi qu’ une cave a vin et une lingerie. Un garage et 2 places de stationnement extérieures. Enfin, une dépendance pour gardien ou adolescents vient compléter cette villa d'exception. Accès facile à la ville, au tramway et à l'autoroute à seulement quelques minutes, cette propriété représente un véritable havre de paix au cœur de Nice. INSTAGRAM LIGHTSHOP CLAP.LEGAL BEELLY FRANÇAIS ANGLAIS ITALIEN Nice Carré d'Or - Superbe 2 pièces rénové avec balcon sud //Carré d'Or// à Nice, à 100 mètres de la célèbre Promenade des Anglais, de la mer, au pied de tous les commerces, restaurants, bus N°12 à 10m pour aéroport et Place Masséna. Un bien rare et parfait pour investissement locatif et/ou pied à terre. Location saisonnière possible. Appartement 2 pièces entièrement refait à neuf avec balcon, vendu meublé, prestations haut de gamme et une décoration raffinée. Le bien est composé d'une entrée, d'un séjour ouvrant sur un charmant balcon sud de 4.5m², une cuisine ouverte équipée, une chambre au calme avec grands placards, une salle de douche avec toilettes. Une cave complète ce bien. Chauffage et eau chaude collectif. Climatisation réversible. Double vitrage. Résidence de standing avec ascenseur. Electricité et plomberie refaits aux normes. Honoraires agence à la charge des vendeurs. Les informations sur les risques auxquels ce bien est exposé sont disponibles sur le site georisques.gouv.fr.
TRAD_ZEPHYR_Caracteristique TRAD_ZEPHYR_Valeurs
Code postal 06100
Surface habitable (m²) 198 m²
Surface loi Carrez (m²) 198 m²
Nombre de chambre(s) 4
Nombre de pièces 5
Vue Collines
TRAD_ZEPHYR_Caracteristique TRAD_ZEPHYR_Valeurs
Nb de salle de bains 2
Nb de salle d'eau 1
Terrasse OUI
Nombre de garage 1
TRAD_ZEPHYR_Caracteristique TRAD_ZEPHYR_Valeurs
Prix de vente 1 600 000 €
Les honoraires d'agence seront intégralement à la charge du vendeur  
Taxe foncière annuelle 4 900 €
Rez de chaussée
chambre

Toilettes

garage

Parking intérieur

Salle de bains

Salle de douche

terrasse 43 m²

jardin 1000 m²

DPE GES
Contacter pour ce bien
L'agence
Téléphone 04 93 96 47 27
Adresse
81 bis bd Gambetta 06000 Nice

* Champ obligatoire

Les informations recueillies sur ce formulaire sont enregistrées dans un fichier informatisé par La Boite Immo agissant comme Sous-traitant du traitement pour la gestion de la clientèle/prospects de l'Agence / du Réseau qui reste Responsable du Traitement de vos Données personnelles.
La base légale du traitement repose sur l’intérêt légitime de l'Agence / du Réseau.
Elles sont conservées jusqu'à demande de suppression et sont destinées à l'Agence / au Réseau.
Conformément à la loi « informatique et libertés », vous pouvez exercer votre droit d'accès aux données vous concernant et les faire rectifier en contactant l'Agence / le Réseau.
Si vous estimez, après avoir contacté l'Agence / le Réseau, que vos droits « Informatique et Libertés » ne sont pas respectés, vous pouvez adresser une réclamation à la CNIL.
Nous vous informons de l’existence de la liste d'opposition au démarchage téléphonique « Bloctel », sur laquelle vous pouvez vous inscrire ici : https://www.bloctel.gouv.fr 
Dans le cadre de la protection des Données personnelles, nous vous invitons à ne pas inscrire de Données sensibles dans le champ de saisie libre
Ce site est protégé par reCAPTCHA, les Politiques de Confidentialité et les Conditions d'Utilisation de Google s'appliquent.

Découvrir nos outils